北海道 収益(1棟MS )物件

(間取) (外観) (地図)
価格
1億2,200万円
マンション
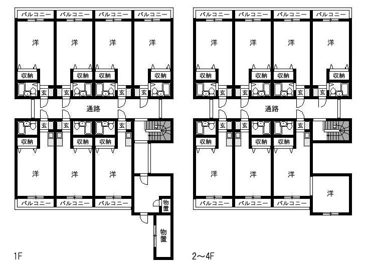
間取
1K
表面利回り
9.90%
現行利回り
6.72%
所在地 北海道札幌市東区北九条東8丁目4-28  グランメール北9条
交通 札幌市営東豊線 東区役所前駅 徒歩7分
築年月 1987年3月 新築/中古 中古
面積 計測方式
バルコニー 向き
建物階数 地上4階  部屋階数
部屋/区画番号 総戸/区画数 28戸
建物構造 鉄筋コンクリート造陸屋根
敷地全体面積 延べ床面積 820.92m²
間取内容
駐車場 8,000円 空有 取引態様 一般
引渡/入居時期 相談 現況 賃貸中
地目 宅地 用途地域 第一種住居
都市計画 市街化区域 地勢 平坦
土地面積 414.73m² 土地面積計測方式 公簿
建ぺい率 60% 容積率 200%
土地権利 所有権 その他制限
接道方向1 南東 接道間口1
接道種別1 公道 接道幅員1 15.0m
国土法届出 不要
周辺環境 苗穂小学校 美香保中学校
設備・条件 地デジ対応 都市ガス 公営水道 排水下水
物件番号 6087
自社物 自社物 状態 売出中
特記事項 現況渡し オーナーチェンジ物件 入居募集停止中
※物件掲載内容と現況に相違がある場合は現況を優先と致します。
  • 香川県 売地(月極駐車場)物件香川県 売地(月極駐車場)物件
    286万円 37.91m²
    高松市瀬戸内町24-19

    JR高徳線昭和町駅
  • 千葉県 収益(区分MS)物件千葉県 収益(区分MS)物件
    2,980万円 3LDK
    千葉市美浜区新港4-14

    JR京葉線千葉みなと駅
  • 北海道 収益(1棟MS )物件北海道 収益(1棟MS )物件
    1億2,200万円 1K
    札幌市東区北九条東8丁目4-28

    札幌市営東豊線東区役所前駅
  • 埼玉県 収益(1棟MS)物件埼玉県 収益(1棟MS)物件
    1億9,500万円
    川越市小仙波町2丁目

    JR川越線川越駅