埼玉県 収益 (1棟MS )物件
up

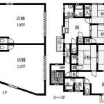
(間取) (外観) (地図)
価格
6,700万円
アパート
間取
2DK
表面利回り
8.65%
現行利回り
8.65%
所在地 埼玉県戸田市美女木2丁目20-7  わたらせハイツ
交通 JR埼京線 北戸田駅 徒歩28分
築年月 1995年11月 新築/中古 中古
面積 258.73m² 計測方式
バルコニー 向き
建物階数 地上3階  部屋階数
建物構造 鉄骨造陸屋根
間取内容
店舗 ×2室
駐車場 取引態様 一般
引渡/入居時期 相談 現況 賃貸中
地目 宅地 用途地域 第一種住居
都市計画 市街化区域 地勢
土地面積 132.04m² 土地面積計測方式 公簿
建ぺい率 60% 容積率 200%
土地権利 所有権 その他制限 準防火地域
接道方向1 接道間口1
接道種別1 公道 接道幅員1 8.4m
接道方向2 接道間口2
接道種別2 公道 接道幅員2 4m
周辺環境 美女木小学校 美笹中学校
設備・条件 地デジ対応 都市ガス 公営水道 排水下水
物件番号 6092
特記事項 現況渡し・オーナーチェンジ物件
※物件掲載内容と現況に相違がある場合は現況を優先と致します。
  • new
    香川県 売地(月極駐車場)物件香川県 売地(月極駐車場)物件
    286万円 37.91m²
    高松市瀬戸内町24-19

    JR高徳線昭和町駅
  • up
    千葉県 収益(区分MS)物件千葉県 収益(区分MS)物件
    2,980万円 3LDK
    千葉市美浜区新港4-14

    JR京葉線千葉みなと駅
  • up
    北海道 収益(1棟MS )物件北海道 収益(1棟MS )物件
    1億2,200万円 1K
    札幌市東区北九条東8丁目4-28

    札幌市営東豊線東区役所前駅
  • up
    埼玉県 収益(1棟MS)物件埼玉県 収益(1棟MS)物件
    1億9,500万円
    川越市小仙波町2丁目

    JR川越線川越駅